W pobliżu Metra Słodowiec Sprzedaż

Warszawa, Bielany, Zbigniewa Romaszewskiego
749 000 PLN
13 901,26 PLN /m2
  • Cena 749 000 PLN
  • Powierzchnia 53,88 m2
  • Cena za m2 13 901,26 PLN
  • Liczba pokoi 3
  • Piętro 6/10
  • Rok budowy 1974

Opis oferty

Chcesz zamieszkać i mieć widok z balkonu na park? Zależy Ci na świetnej lokalizacji w pobliżu komunikacji miejskiej, licznych punktów handlowo usługowych oraz oświatowych? Poszukujesz mieszkania, które remontujesz według własnej potrzeby? A może chcesz zainwestować i poszukujesz dobrej lokaty?
Jeżeli tak to mieszkanie jest właśnie dla Ciebie!

MIESZKANIE

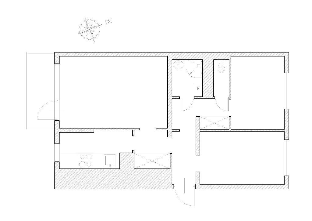
Mieszkanie o powierzchni 53,88 m² położone jest na szóstym piętrze i składa się z trzech pokoi, oferując duży potencjał aranżacyjny. Centralnym punktem lokalu jest jasny salon z wyjściem na loggię o powierzchni około 3 m², z której rozpościera się przyjemny widok na park. Pomieszczenie to można połączyć z osobną kuchnią oraz częścią korytarza, tworząc otwartą, przestronną strefę dzienną o powierzchni ponad 25 m² - idealną do wspólnego spędzania czasu czy przyjmowania gości.

Mieszkanie jest dwustronne, co stanowi jego duży atut - zapewnia doskonałą cyrkulację powietrza i możliwość szybkiego przewietrzenia pomieszczeń. Okna salonu wychodzą na wschód, dzięki czemu wnętrze jest pełne porannego światła, natomiast sypialnie, skierowane na zachód, oferują przytulne, ciepłe popołudniowe słońce. Obie sypialnie są ustawne, o powierzchniach około 10 i 9 m², co pozwala na komfortowe urządzenie zarówno pokoju dziecięcego, jak i sypialni głównej lub gabinetu.

W mieszkaniu toaleta i łazienka są oddzielne, co zwiększa funkcjonalność układu. Lokal wymaga remontu, w tym wymiany instalacji elektrycznej, co daje nowemu właścicielowi możliwość dostosowania przestrzeni do własnych potrzeb i gustu. Okna PCV zostały wymienione około dziesięciu lat temu, co stanowi istotny element modernizacji.

BUDYNEK

Budynek, w którym znajduje się mieszkanie, został wzniesiony w 1974 roku w technologii wielkiej płyty. Jest to dziesięciopiętrowy blok mieszkalny, utrzymany w dobrym stanie technicznym i sukcesywnie modernizowany przez wspólnotę. W budynku znajduje się winda, która została niedawno wymieniona na nowoczesny, cichy model, zapewniający wygodę mieszkańcom wszystkich pięter.

W ostatnich latach przeprowadzono szereg ważnych prac modernizacyjnych. W 2024 roku wymieniono instalację elektryczną w częściach wspólnych, a w październiku 2025 roku zakończono wymianę instalacji wodno-kanalizacyjnej, co znacząco podnosi standard i bezpieczeństwo użytkowania budynku. Dodatkowym atutem jest obecność węzła cieplnego, który gwarantuje stabilne i efektywne ogrzewanie mieszkań.

Czynsz administracyjny, bez uwzględnienia mediów, wynosi 615 zł miesięcznie. Przy uwzględnieniu zużycia mediów przez trzyosobową rodzinę, całkowity koszt utrzymania mieszkania szacuje się na około 950 zł miesięcznie. Budynek jest zadbany i dobrze zarządzany, a przeprowadzone modernizacje sprawiają, że stanowi on solidną i komfortową bazę do zamieszkania na długie lata.

LOKALIZACJA

Mieszkanie położone jest w wyjątkowo zielonej i spokojnej części miasta, w bezpośrednim sąsiedztwie parku Olszyna, który widać z balkonu. To idealne miejsce dla osób ceniących kontakt z naturą - tuż pod blokiem znajdują się alejki spacerowe, place zabaw i tereny rekreacyjne, które sprzyjają wypoczynkowi na świeżym powietrzu. W niedużej odległości, zaledwie kilka minut spacerem, znajduje się również park Herberta z popularnym BlueParkiem - nowoczesnym kompleksem sportowo-rekreacyjnym, idealnym zarówno dla dzieci, jak i dorosłych.
Okolica jest doskonale skomunikowana z resztą miasta. Stacja metra Słodowiec oddalona jest o około 10 minut spacerem, a w pobliżu znajdują się również liczne przystanki autobusowe i tramwajowe, które zapewniają szybki dojazd do centrum oraz innych dzielnic Warszawy. W zasięgu krótkiego spaceru - około 400 metrów - znajduje się dyskont Biedronka, co gwarantuje wygodny dostęp do codziennych zakupów.
Rodziny z dziećmi z pewnością docenią bliskość Szkoły Podstawowej nr 187 im. Adama Mickiewicza, położonej około 500 metrów od budynku, a także dwóch publicznych żłobków - nr 17 i nr 24.
To lokalizacja, która łączy w sobie wszystkie zalety życia w mieście - doskonałą komunikację, pełną infrastrukturę i dostęp do zieleni. Spokojne otoczenie, liczne tereny rekreacyjne i dobrze rozwinięta sieć usług czynią to miejsce idealnym do życia dla rodzin, par i osób szukających harmonii między naturą a miejską wygodą.

Zapraszam do kontaktu!

więcej

Informacje

Numer oferty34964532634 (MLS)
Typ transakcjiSprzedaż
Cena749 000 PLN
Powierzchnia53.88 m2
Cena za m213 901,26 PLN / m2
Liczba pokoi3
Piętro6/10
Liczba wind1
Dostępne od2025-10-14
Rok budowy1974
Liczba sypialni2

Informacje dodatkowe

  • Na wyłączność
  • Piwnica
  • Balkon
  • Winda

Lokalizacja

Wyślij zapytanie