Ujazdów - PARK ŁAZIENKOWSKI Sprzedaż

Warszawa, Śródmieście, Adolfa Suligowskiego
1 249 000 PLN
18 367,65 PLN /m2
  • Cena 1 249 000 PLN
  • Powierzchnia 68 m2
  • Cena za m2 18 367,65 PLN
  • Liczba pokoi 3
  • Piętro 2/4
  • Rok budowy 1937

Opis oferty

Wyjątkowe 3-pokojowe mieszkanie w przedwojennej kamienicy, zlokalizowanej w Śródmieściu (Ujazdów), w sąsiedztwie Parku Łazienkowskiego!

Kamienica jest dość kameralna, jednoklatkowa, po kompleksowym remoncie. Ładna elewacja, wyremontowane instalacje wewnętrzne oraz klatka schodowa i piwnice. Tylko 4 mieszkania na piętrze.

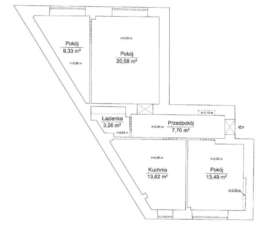
Lokal usytuowany jest na 2 piętrze. Ma piękną wysokość- 295cm.
Zachowany jest oryginalny układ. Udało się również zachować przedwojenny charakter wnętrza. Newątpliwie klimatu dodaje dędowy parkiet ułożony w jodłę, oryginalna stolarka wewnętrzna ze świetlikami nad drzwiami do pokoi i kuchni oraz piec kaflowy! Piec jest oczywiście tylko ozdobą ;)
Budynek ogrzewany jest z własnej kotłowni gazowej.

Mieszkanie przeszło gruntowny remont - wymienione są instalacje wewnętrze - elektryczna, centralnego ogrzewania i wodno-kanalizacyjna. Zrezygnowano z gazu (jest 3 faza do kuchni indukcyjnej).
Obecnie pokoje są puste. W kuchni zabudowa z IKEA, raczej podstawowa.
W łazience kabina prysznicowa, mieści się również duża pralka.

Układ to osobna widna kuchnia, sypialnia oraz salon, z którego jest wejście do najmniejszego pokoju o dość rzadko spotykanym kształcie trapezu.
Obecny rozkład jest idealny dla pary, pary z dzieckiem, miłośników gotowania, osób, które potrzebują gabinetu lub sypialni gościnnej. Załączony plan potwierdza dużą plastyczność tego lokalu, gdyby ktoś miał chęć na zmiany aranżacyjne ;)

Jest to spokojna i cicha okolica. Okna wychodzą na podwórze (sypialnia i kuchnia) - wschód. Zaś dwa pokoje wychodzą na zachód w kiedynku jednokierunkowej ulicy Suligowskiego. Naprawdę ciche mieszkanie, a za dużymi trzyskrzydłowymi oknami widok na zielone drzewa.

Odrębna własność, nie ma obciążeń w hipotece.
przynależna ponad 5 -metrowa piwnica.

Ficzyczny pomiar oraz wynikający z planu administracyjnego, wskazuje na metraż 68m2, w dokumentach jest on mniejszy - 61,75m2. przeprowadzany został pomiar geodezyjny lokalu, na potwierdzenie tego faktu. Dysponujemy już dokumentami.

Zapraszam!

więcej

Informacje

Numer oferty34964510012 (MLS)
Typ transakcjiSprzedaż
Cena1 249 000 PLN
Powierzchnia68 m2
Cena za m218 367,65 PLN / m2
Liczba pokoi3
Piętro2/4
Typ budynkuKamienica
Materiał budowlanycegła
Rok budowy1937

Informacje dodatkowe

  • Na wyłączność
  • Gaz
  • Piwnica

Lokalizacja

Wyślij zapytanie