3 pokoje | apartamentowiec | Bielany Żoliborz Sprzedaż

Warszawa, Bielany, Gdańska
2 252 500 PLN
26 500 PLN /m2
  • Cena 2 252 500 PLN
  • Powierzchnia 85 m2
  • Cena za m2 26 500 PLN
  • Liczba pokoi 3
  • Piętro 1/2
  • Rok budowy 2025

Opis oferty

Prezentujemy Państwu mieszkanie na sprzedaż w kameralnym apartamentowcu przy Stawach Kellera.

NIERUCHOMOŚĆ

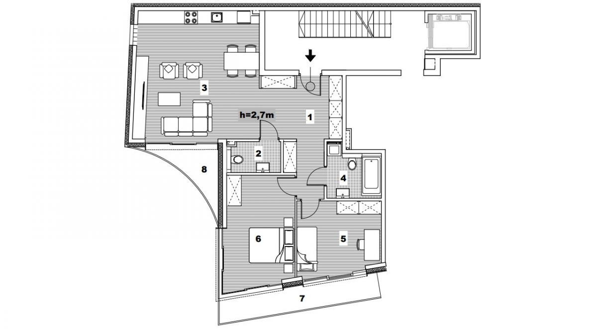
Prezentowana nieruchomość to mieszkanie o powierzchni 86 metrów kwadratowych znajdujące się na 1 piętrze budynku. Składa się ono z salonu z kuchnią, dwóch sypialni, hallu oraz dwóch łazienek.

Z mieszkania wychodzą dwa balkony, jeden na stronę północną, drugi na północno-wschodnią. Dzięki dużym przeszkleniom mieszkanie jest bardzo dobrze doświetlone, a z okien rozpościera się widok na zieleń.

ATUTY NIERUCHOMOŚCI

- kameralny apartamentowiec
- lokalizacja na pograniczu Żoliborza i Bielan
- bliskość terenów zielonych oraz szybki dojazd do centrum

Miejsce parkingowe w garażu podziemnym oraz komórka lokatorska dodatkowo płatne.

LOKALIZACJA

Apartamentowiec znajduje się na pograniczu Żoliborza i Starych Bielan. Blisko terenów zielonych, Stawów Kellera, Dolinki Marymonckiej, Parku Kaskada oraz Lasu Bielańskiego. Dogodna lokalizacja oraz bliskość metra daje łatwy i szybki dostęp do centrum Warszawy.

więcej

Informacje

Numer oferty34964532638 (MLS)
Typ transakcjiSprzedaż
Cena2 252 500 PLN
Powierzchnia85 m2
Cena za m226 500 PLN / m2
Liczba pokoi3
Piętro1/2
Typ budynkuApartamentowiec
Liczba wind1
Miejsca parkingoweMiejsca parkingowe podziemne
Rok budowy2025
Liczba sypialni2

Informacje dodatkowe

  • Na wyłączność
  • Rynek pierwotny
  • Ogrzewanie
  • Balkon
  • Winda

Lokalizacja

Wyślij zapytanie