Segment Sadyba Sprzedaż

Warszawa, Mokotów, Nałęczowska
2 498 000 PLN
13 147,37 PLN /m2
  • Cena 2 498 000 PLN
  • Powierzchnia 190 m2
  • Cena za m2 13 147,37 PLN
  • Liczba pokoi 4
  • Rok budowy 1965

Opis oferty

Segment środkowy - Mokotów Sadyba powierzchnia zabudowy 60m w czterech kondygnacjach z lat 60tych.
Powierzchnia całkowita domu 190m.
Powierzchnia działki 246 m.
PIWNICA:
Garaż na 2 -samochody 20m. Pokój/służbówka 10m. Pomieszczenie gospodarcze 10m.
Kotłownia. Spiżarnia 4.
PARTER:
Salon 23m. Kuchnia 12m. WC 2m. Wiatrołap 3m. Hol 10m. Weranda 6m.
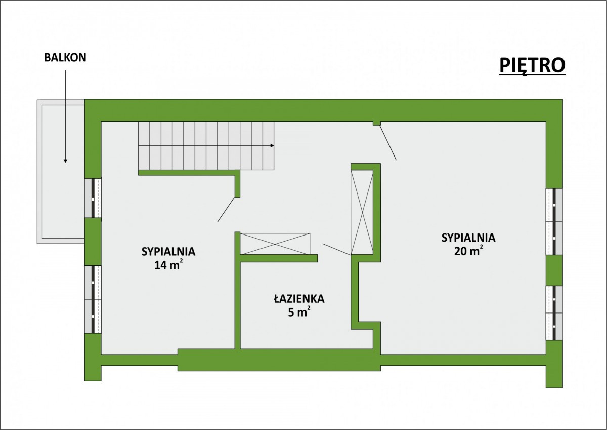
PIĘTRO:
Sypialnia 20m. Sypialnia 14m. Łazienka 5m.
PODDASZE:
Otwarta przestrzeń około 60m ze skosami, możliwość zrobienia łazienki i wydzielenia dwóch sypialni.
Działka zagospodarowana wokół dużo zieleni, spokojni mili sąsiedzi.
Na podłodze parkiet, schody drewniane, dom na bieżąco remontowany, wymaga jednak gruntownego odświeżenia.

więcej

Informacje

Numer oferty34964505167 (MLS)
Typ transakcjiSprzedaż
Cena2 498 000 PLN
Powierzchnia190 m2
Cena za m213 147,37 PLN / m2
Liczba pokoi4
Liczba miejsc parkingowych1
Liczba łazienek2
Liczba sypialni3
Forma własnościWłasność
Miejsca parkingoweMiejsca parkingowe naziemne, Miejsca w garażu
Rok budowy1965
Typ zabudowySegment Środkowy
Powierzchnia działki241

Informacje dodatkowe

  • Na wyłączność
  • Woda
  • Prad
  • Balkon

Lokalizacja

Wyślij zapytanie