Bemowo -METRO- 50m2 - DO REMONTU!! Sprzedaż

Warszawa, Bemowo Jelonki, Gen. Waleriana Czumy
629 797 PLN
12 520,82 PLN /m2
  • Cena 629 797 PLN
  • Powierzchnia 50,30 m2
  • Cena za m2 12 520,82 PLN
  • Liczba pokoi 2
  • Piętro 3/3
  • Rok budowy 0

Opis oferty

Na sprzedaż mieszkanie zlokalizowane na warszawskim Bemowie, przy ul. Czumy, w cichej i spokojnej okolicy otoczonej zielenią.

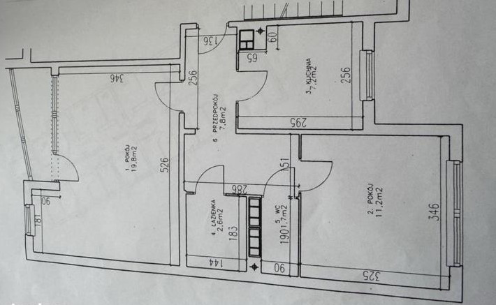
Opis mieszkania:
• powierzchnia: 50,3 m²
• układ: 2 pokoje, oddzielna kuchnia, łazienka oraz toaleta
• większy pokój (19,8 m²) z wyjściem na loggię
• drugi pokój (11,2 m²)
• kuchnia (7,2 m²)
• przestronny przedpokój (7,8 m²)

Do mieszkania przynależy komórka lokatorska o powierzchni 3m2. Parking naziemny przy budynku. Brak windy.

Załączona wizualizacja przedstawia możliwość wydzielenia dodatkowego pokoju i przeniesienia kuchni do salonu.

Mieszkanie znajduje się w stanie do remontu, co daje możliwość własnej aranżacji wnętrz. Dostępne od zaraz.

Atuty lokalizacji:
• bliskość parku Górczewska - idealne miejsce do spacerów i rekreacji
• w pobliżu: szkoły, przedszkola, liczne sklepy, urząd dzielnicy
• doskonała komunikacja - metro, tramwaje i autobusy
• wokół dużo zieleni, ścieżki rowerowe, spokojne otoczenie

Idealna propozycja dla osób szukających mieszkania w dobrze skomunikowanej, a zarazem zielonej części Warszawy.

więcej

Informacje

Numer oferty34964520852 (MLS)
Typ transakcjiSprzedaż
Cena629 797 PLN
Powierzchnia50.3 m2
Cena za m212 520,82 PLN / m2
Liczba pokoi2
Piętro3/3
Dostępne od2025-09-02
Liczba sypialni1

Informacje dodatkowe

  • Na wyłączność
  • Piwnica

Lokalizacja

Wyślij zapytanie