Przestrzeń, światło i panorama miasta Sprzedaż

Warszawa, Wola, Kłopot
2 100 000 PLN
26 683,61 PLN /m2
  • Cena 2 100 000 PLN
  • Powierzchnia 78,70 m2
  • Cena za m2 26 683,61 PLN
  • Liczba pokoi 3
  • Piętro 15/15
  • Rok budowy 0

Opis oferty

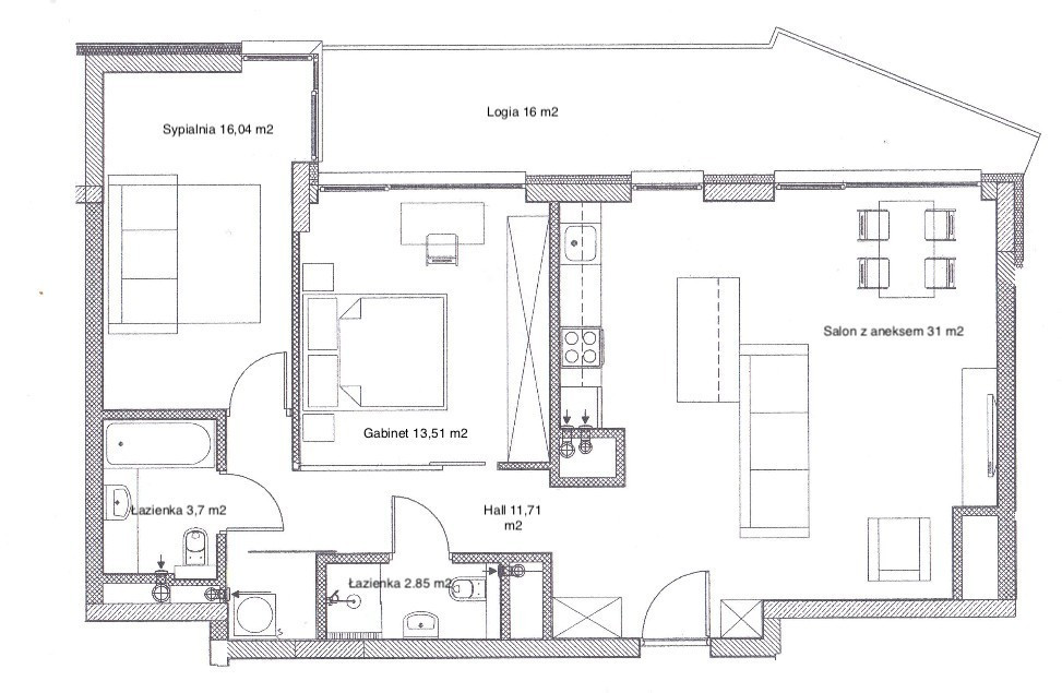
Inwestycja "Przy Arkadii" | ul. Kłopot 4 | 15. piętro (ostatnie) | 78,7 m² + loggia 16,53 m²

Elegancki apartament położony na ostatnim piętrze nowoczesnej inwestycji "Przy Arkadii", z niepowtarzalnym widokiem na centrum Warszawy. To przestrzeń stworzona z myślą o osobach, które cenią komfort, wysoki standard wykończenia i lokalizację z charakterem.

Przemyślany układ:
przestronny salon z aneksem kuchennym
dwie sypialnie:
→ jedna z przeszkloną ścianą i przesuwnymi szklanymi drzwiami
→ druga z efektownym przeszkleniem do łazienki z wanną
dwie łazienki (wanna i prysznic)
pralnia
garderoba

Każde z pomieszczeń ma bezpośrednie wyjście na dużą loggię o powierzchni 16,53 m², z której rozciąga się widok na centrum Warszawy — z ikoniczną sylwetką Pałacu Kultury i nowoczesnymi wieżowcami. To miejsce idealne na poranną kawę, wieczorny odpoczynek lub spotkania z widokiem, który codziennie robi wrażenie.

Wysoki standard wykończenia:
Mieszkanie zostało wykończone z dbałością o detale — z użyciem naturalnych materiałów, takich jak fornir, kamień i metal. Zabudowa kuchni i szafy zostały wykonane na zamówienie. Panoramiczne okna zapewniają doskonałe doświetlenie wnętrz, a wysoka stolarka drzwiowa dodatkowo potęguje wrażenie przestrzeni i elegancji. Apartament wyposażony jest w klimatyzację oraz nowoczesne oświetlenie.

Lokalizacja:
Inwestycja "Przy Arkadii" to miejsce, które łączy energię centrum miasta z dostępem do natury i przestrzeni. Tuż obok znajduje się Westfield Arkadia, stacja metra Dworzec Gdański oraz liczne sklepy, restauracje i usługi. W zasięgu krótkiego spaceru — Park Kusocińskiego, skwery Żoliborza, a nieco dalej bulwary nad Wisłą i parki miejskie. Lokalizacja zapewnia pełen dostęp do miejskiej infrastruktury, a jednocześnie pozwala złapać oddech i cieszyć się zielenią.


==
Prezentowana oferta ma charakter informacyjny, nie stanowi oferty handlowej w rozumieniu Art. 66 par. 1 Kodeksu Cywilnego.
==

Top-floor apartment with skyline view over central Warsaw
"Przy Arkadii" development | Kłopot 4 | 15th floor (top floor) | 78.7 m² + loggia 16.53 m²

An elegant apartment on the top floor of the modern “Przy Arkadii” development — with an unobstructed view of Warsaw"s city center. A refined space for those who value comfort, high-end finishes, and a location that blends city energy with a touch of greenery.

Functional and well-designed layout:
spacious living room with open-plan kitchen
two bedrooms:
→ one with a glass wall and sliding glass doors
→ the other with a glass panel overlooking the bathroom with a bathtub
two bathrooms (bathtub + walk-in shower)
separate laundry room
walk-in wardrobe

Each room has direct access to a large 16.53 m² loggia, offering a sweeping view of Warsaw’s skyline — with the iconic Palace of Culture and Science and the city’s modern high-rises in sight. It"s a perfect setting for morning coffee, evening relaxation or entertaining guests with a view that never gets old.

High standard of finish:
The apartment was finished with great attention to detail, using natural materials such as wood veneer, stone and metal. The kitchen and built-in wardrobes were custom-made. Large panoramic windows ensure excellent natural light, while the tall interior doors enhance the feeling of space and elegance. The apartment is equipped with air conditioning and designer lighting.

Location:
The “Przy Arkadii” development is perfectly located — combining the convenience of city life with the calm of nearby parks and green areas. Within walking distance, you"ll find Westfield Arkadia shopping center, Dworzec Gdański metro station, as well as restaurants, cafés and daily services. The nearby Kusocińskiego Park, Żoliborz greenery, and the Vistula Boulevards offer perfect spaces for walks, cycling or simply relaxing in nature.
==

The presented offer is for information purposes only and does not constitute an offer within the meaning of Art. 66 par. 1 of the Civil Code.
==

więcej

Informacje

Numer oferty34964513338 (MLS)
Typ transakcjiSprzedaż
Cena2 100 000 PLN
Powierzchnia78.7 m2
Cena za m226 683,61 PLN / m2
Liczba pokoi3
Piętro15/15
Typ budynkuApartamentowiec
Liczba wind2
Dostępne od2025-11-20
Miejsca parkingoweMiejsca parkingowe podziemne
Liczba sypialni2

Informacje dodatkowe

  • Na wyłączność
  • Domofon
  • Ogrzewanie
  • Winda

Lokalizacja

Wyślij zapytanie