580 999 PLN
15 983,47 PLN /m2
  • Cena 580 999 PLN
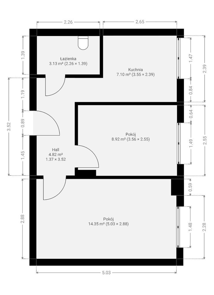
  • Powierzchnia 36,35 m2
  • Cena za m2 15 983,47 PLN
  • Liczba pokoi 2
  • Piętro 2/3
  • Rok budowy 1954

Opis oferty

Praga-Południe 36 m² 2 pokoje kamienica z 1954 r. po remoncie Na sprzedaż jasne, dwupokojowe mieszkanie o powierzchni 36 m², położone na 3. piętrze zadbanej kamienicy z 1954 roku przy ul. Michała Paca. Wysokie (2,9 m) wnętrza sprawiają, że mieszkanie wydaje się przestronne i pełne naturalnego światła. Lokal został ocieplony, co zapewnia komfort mieszkania niezależnie od pory roku.Układ pomieszczeń: pokój dzienny – 14,35 m², sypialnia – 8,92 m², osobna kuchnia z oknem – 7,10 m², łazienka – 3,13 m². Do mieszkania przynależy piwnica. Z okien rozciąga się widok na zielone, zadbane podwórko, które tworzy przyjazną i spokojną atmosferę. Pod budynkiem dostępne są miejsca parkingowe. Standard i remont: generalny remont mieszkania (wymienione instalacje, kaloryfery, gniazdka elektryczne), odnowiona drewniana podłoga, lokal pozostaje do wykończenia, co daje możliwość aranżacji wnętrza według własnego pomysłu. Czynsz administracyjny: 480 zł/miesiąc. Pełna własność z księgą wieczystą – możliwość zakupu na kredyt hipoteczny. Lokalizacja: tuż obok park im. Polińskiego, w pobliżu sklepy, kawiarnie, szkoły, przedszkola, szpital i pełna infrastruktura usługowa, świetna komunikacja – tramwaje, autobusy, blisko stacja Warszawa Wschodnia, szybki i wygodny dojazd do centrum oraz innych części miasta. To mieszkanie to doskonała propozycja dla singla, pary lub inwestora – świetna lokalizacja, klimatyczna kamienica i przestrzeń gotowa do urządzenia według własnych potrzeb.

więcej

Informacje

Numer oferty34964519444 (MLS)
Typ transakcjiSprzedaż
Cena580 999 PLN
Powierzchnia36.35 m2
Cena za m215 983,47 PLN / m2
Liczba pokoi2
Piętro2/3
Liczba wind0
Liczba poziomów0
Dostępne od2024-12-31
Materiał budowlanywielka płyta
Rok budowy1954
Liczba sypialni2

Informacje dodatkowe

  • Na wyłączność
  • Domofon
  • Internet
  • Piwnica

Lokalizacja

Wyślij zapytanie