Wyjątkowe mieszkanie z ogrodem przy Parku Sprzedaż

Warszawa, Włochy, Krańcowa
1 295 000 PLN
22 719,30 PLN /m2
  • Cena 1 295 000 PLN
  • Powierzchnia 57 m2
  • Cena za m2 22 719,30 PLN
  • Liczba pokoi 2
  • Piętro parter/4
  • Rok budowy 2022

Opis oferty

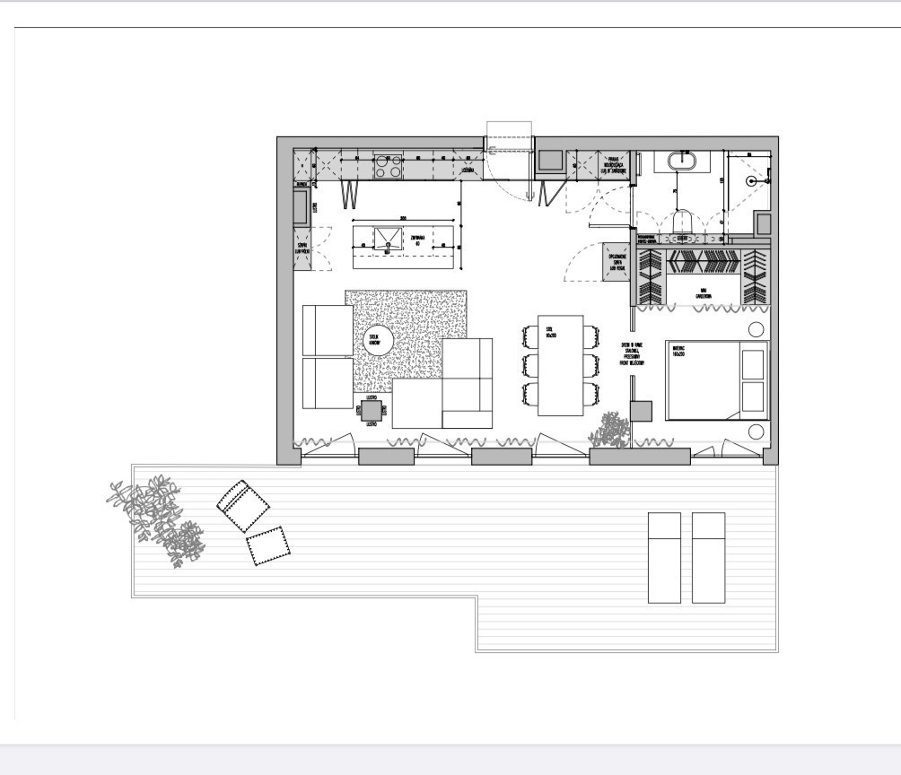
Wyjątkowe mieszkanie z ogrodem przy Stawach Cietrzewia - więcej przestrzeni na Twoje marzenia!

Prezentujemy nowoczesne mieszkanie z prywatnym ogrodem, zaprojektowane przez renomowaną pracownię z Wiednia i wykończone w podwyższonym standardzie. Położone w prestiżowej okolicy przy Stawach Cietrzewia, łączy komfort miejskiego życia z bliskością natury.

Przestrzeń zaprojektowana dla Ciebie
To 56,34 m² doskonale rozplanowanej przestrzeni, w której każdy detal został starannie przemyślany:
Jasny salon z dużymi oknami i widokiem na ogród
Nowoczesna kuchnia, w pełni wyposażona w wysokiej klasy sprzęt
Komfortowa sypialnia, zapewniająca idealne warunki do wypoczynku
Nowoczesna łazienka z eleganckim wykończeniem
Funkcjonalna garderoba - więcej miejsca na Twoje potrzeby

Twój prywatny ogród
Własna, zielona przestrzeń to idealne miejsce na relaks, spotkania z bliskimi i odpoczynek na świeżym powietrzu. Starannie zaprojektowany ogródek tworzy harmonijną strefę komfortu w otoczeniu zieleni.

Wysoka jakość wykończenia


Materiały premium - trwałość i elegancja na lata
Nowoczesne rozwiązania oświetleniowe i funkcjonalne wnętrza
Bliskość natury w prestiżowej lokalizacji



Dodatkowe udogodnienia
Miejsce postojowe - dostępne za dodatkowe 70 000 zł
Komórka lokatorska - możliwość zakupu za 30 000 zł

Mieszkanie, które zapewnia komfort, funkcjonalność i wyjątkowy klimat - idealne dla osób szukających harmonii między nowoczesnym stylem życia a bliskością przyrody.

Zapraszamy do kontaktu i na prezentację!

więcej

Informacje

Numer oferty34964509564 (MLS)
Typ transakcjiSprzedaż
Cena1 295 000 PLN
Powierzchnia57 m2
Cena za m222 719,30 PLN / m2
Liczba pokoi2
Piętroparter/4
Typ budynkuApartamentowiec
Liczba wind1
Miejsca parkingoweMiejsca parkingowe podziemne
Materiał budowlanyYTong
Rok budowy2022
Liczba sypialni1

Informacje dodatkowe

  • Na wyłączność
  • Domofon
  • Ogrzewanie
  • Gaz
  • Taras
  • Internet
  • Winda

Lokalizacja

Wyślij zapytanie