Ciche / Metro/ Tuż przy parku/ Centrum Sprzedaż

Warszawa, Śródmieście, Ptasia
1 699 000 PLN
19 908,60 PLN /m2
  • Cena 1 699 000 PLN
  • Powierzchnia 85,34 m2
  • Cena za m2 19 908,60 PLN
  • Liczba pokoi 4
  • Piętro 2/6
  • Rok budowy 2000

Opis oferty

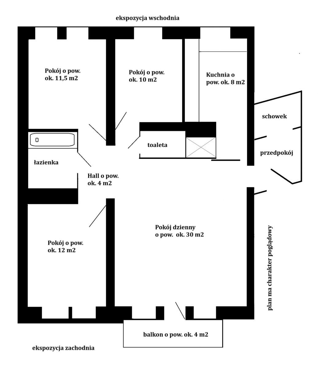
Oferuję do sprzedaży ciche mieszkanie znajdujące się drugim piętrze budynku z końca lat dziewięćdziesiątych XX w., przy ulicy Ptasiej.

Mieszkanie ma pow. 85,34 m2 i składa się z pokoju dziennego o pow. ok. 30 m2, trzech sypialni o pow. 12/ 11,5/ 10 m2, samodzielnej kuchni o pow. ok. 8 m2, łazienki o pow. ok. 4,6 m2 (wyposażonej w dużą wannę), osobnej toalety o pow. ok. 1,6 m2, a także schowka i przedpokoju. Z pokoju dziennego można wyjść na balkon o pow. ok. 4 m2.

Lokal ma funkcjonalny układ pomieszczeń, a jego dwustronna ekspozycja zapewnia optymalne nasłonecznienie przez większą część dnia (południowy zachód /północny wchód). Okna dwóch sypialni oraz kuchni są skierowane na zieleń i podwórka sąsiednich budynków. Z okien pokoju dziennego oraz trzeciej sypialni, rozpościera się widok na frontowe podwórze, a w dalszej perspektywie na ścisłe centrum Warszawy (w tym na Pałac Kultury i Nauki).

W bliskiej okolicy znajdują się szkoły i przedszkola publiczne, dwa parki (w tym Park Saski), liczne sklepy, bazarek a także punkty usługowe.

Centralna lokalizacja zapewnia doskonałą komunikację z każdą częścią miasta. Do metra (Ratusz Arsenał) oraz do najbliższych linii tramwajowych można dojść w zaledwie kilka minut.


Mieszkanie własnościowe z nieobciążoną księgą wieczystą.
Do lokalu jest przypisana piwnica o pow. ok. 4 m2.
W budynku jest winda.
Parkowanie na zamykam podwórku (jeden pilot).
Opłaty eksploatacyjne (z zaliczkami na media) wynoszą ok. 1640 pln miesięcznie.

Zapraszam na prezentację

więcej

Informacje

Numer oferty34964534996 (MLS)
Typ transakcjiSprzedaż
Cena1 699 000 PLN
Powierzchnia85.34 m2
Cena za m219 908,60 PLN / m2
Liczba pokoi4
Piętro2/6
Typ budynkuBlok Mieszkalny
Liczba wind1
Materiał budowlanycegła
Rok budowy2000
Liczba sypialni3

Informacje dodatkowe

  • Na wyłączność
  • Ogrzewanie
  • Gaz
  • Domofon
  • Piwnica
  • Balkon
  • Winda

Lokalizacja

Wyślij zapytanie