Ostatnie piętro - GENIALNY WIDOK + GARAŻ Sprzedaż

Warszawa, Śródmieście, Adolfa Suligowskiego
1 399 000 PLN
20 784,43 PLN /m2
  • Cena 1 399 000 PLN
  • Powierzchnia 67,31 m2
  • Cena za m2 20 784,43 PLN
  • Liczba pokoi 3
  • Piętro 4/4
  • Rok budowy 1938

Opis oferty

Apartament w którym znajduje się apartament, zlokalizowany w Śródmieściu (Ujazdów), tuż przy granicy z Mokotowem, w bliskiej odległości od Parku Łazienkowskiego.
Dzięki dużej liczbie okien, jest bardzo dobrze doświetlony (m.in. okna dachowe)

Położony na ostatnim piętrze (4) kamienicy z 1938 roku, która w 2014 r została gruntownie wyremontowana, a poziom na którym znajduje się apartament, został wybudowany.
Kamienica z ładną elewacją, wyremontowanymi instalacjami oraz klatką schodową. Tylko 4 mieszkania na kondygnacji.

Z naszego apartamentu rozpościera się piękny widok na zieleń oraz Centrum Warszawy.
Okolica budynku jest cicha i spokojna.

Projekt apartamentu wykonany przez architekta, obejmuje przestronne wejście i duże otwarte przestrzenie. Wysokość do sufitów i wykończenie drewnianymi belkami nośnymi dodaje mu lekkości.
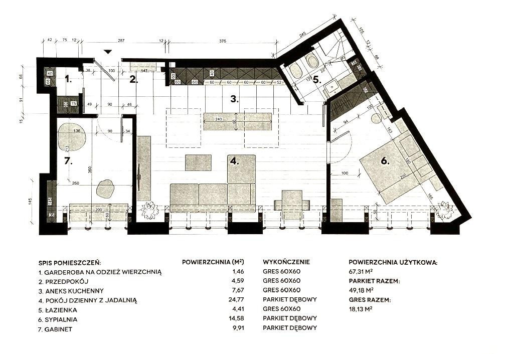
Apartament składa się z pokoju dziennego z jadalnią (24,77 m2) połączonego z aneksem kuchennym (7,67 m2) , sypialni (14,58 m2), gabinetu (9,91 m2), łazienki (4,41 m2), przedpokoju (4,59 m2) oraz garderoby na odzież wierzchnią (1,46 m2).

W pełni wyposażona kuchnia (lodówka z zamrażarką, pralka z suszarką, kuchenka indukcyjna, piekarnik, zmywarka, ekspres do kawy), oddzielona od części dziennej wyspą roboczą z pięknym drewnianym blatem
Łazienka z prysznicem i bidetem oraz z toaletą
W sypialni duża przestrzenna szafa i podwójne łóżko.
W gabinecie biurko, regały, fotel,
Pokój dzienny z sofą, stołem jadalnym.

Wraz z apartamentem można zakupić zamykany garaż który można nabyć w cenie 100.000 zł (nie ma obowiązku, jego zakupu bowiem jest dla niego prowadzona odrębna księga wieczysta).

więcej

Informacje

Numer oferty34964519759 (MLS)
Typ transakcjiSprzedaż
Cena1 399 000 PLN
Powierzchnia67.31 m2
Cena za m220 784,43 PLN / m2
Liczba pokoi3
Piętro4/4
Typ budynkuKamienica
Miejsca parkingoweMiejsca w garażu
Materiał budowlanycegła
Rok budowy1938
Liczba sypialni2

Informacje dodatkowe

  • Na wyłączność

Lokalizacja

Wyślij zapytanie