Dobra inwestycja - 3 oddzielne pokoje na Ochocie Sprzedaż

Warszawa, Ochota, Stefana Baleya
840 000 PLN
14 973,26 PLN /m2
  • Cena 840 000 PLN
  • Powierzchnia 56,10 m2
  • Cena za m2 14 973,26 PLN
  • Liczba pokoi 3
  • Piętro 4/4
  • Rok budowy 1976

Opis oferty

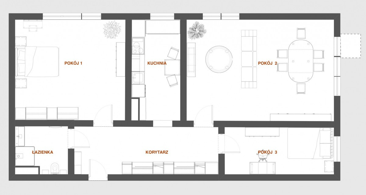
Na sprzedaż mieszkanie o powierzchni 56,10 m² przy ul. Baleya 8. To propozycja dla tych, którzy szukają komfortowego lokum w doskonałej lokalizacji lub stabilnej inwestycji z możliwością wynajmu w całości bądź na pokoje.

Przestronne i funkcjonalne

- Trzy niezależne pokoje
- Kuchnia z oknem - możliwość otwarcia jej na salon, tworząc jasną, nowoczesną strefę dzienną
- Łazienka z prysznicem
- Piwnica (ok. 5 m²) w cenie

Stan mieszkania - do odświeżenia lub remontu, według własnej wizji i potrzeb

Dodatkowe informacje

- Spółdzielcza własność z księgą wieczystą
- Szybki internet dostępny od ręki
- Stabilny najem - mieszkanie było wynajmowane przez kilkanaście lat bez przestojów
- 4 piętro w budynku bez windy
- południowo-zachodnia ekspozycja

Świetna lokalizacja

- Blisko Warszawskiego Uniwersytetu Medycznego
- Dłuższy spacer zaprowadzi Cię do Pola Mokotowskiego, a krótszy - do okolicznych parków
- W pobliżu pełna infrastruktura: sklepy, kawiarnie, restauracje i komunikacja miejska

Cena: 840 000 zł

To mieszkanie daje duże możliwości aranżacyjne i świetnie wpisuje się w rytm życia w sercu Ochoty - funkcjonalne, dobrze skomunikowane i gotowe na nowego właściciela!


Zapraszam serdecznie!

*Oferta jest w trakcie przygotowywania, a załączony plan jest wyłącznie poglądowy*

więcej

Informacje

Numer oferty34964533914 (MLS)
Typ transakcjiSprzedaż
Cena840 000 PLN
Powierzchnia56.1 m2
Cena za m214 973,26 PLN / m2
Liczba pokoi3
Piętro4/4
Liczba poziomów1
Dostępne od2025-10-23
Rok budowy1976
Liczba sypialni3

Informacje dodatkowe

  • Na wyłączność
  • Gaz
  • Piwnica
  • Balkon

Lokalizacja

Wyślij zapytanie