3 pokoje obok Centrum Praskiego Koneser Sprzedaż

Warszawa, Praga-Północ, Białostocka
729 000 PLN
779 000 PLN
  • Cena 729 000 PLN
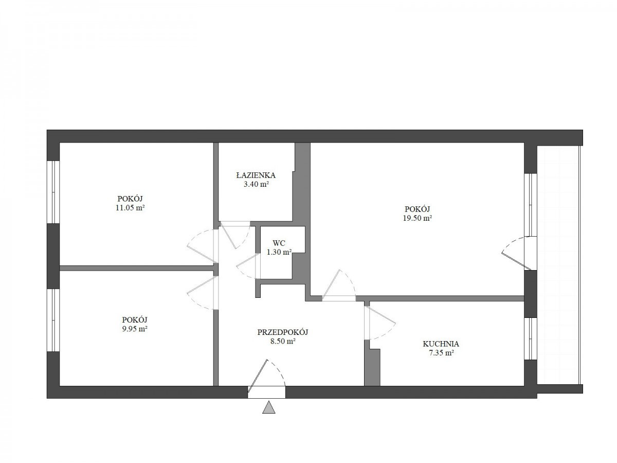
  • Powierzchnia 61,10 m2
  • Cena za m2 11 931,26 PLN
  • Liczba pokoi 3
  • Piętro 1/11
  • Rok budowy 1981

Opis oferty

Przestronne 3-pokojowe mieszkanie w świetnej lokalizacji - tuż obok Konesera!
Idealna oferta dla rodziny z dziećmi lub inwestora szukającego nieruchomości w
atrakcyjnej okolicy.
Mieszkanie o powierzchni 61 m², usytuowane w pobliżu stacji metra Wileńska,
łączy komfort życia w sercu Pragi z doskonałą komunikacją z resztą miasta.

Znajdziesz tu:
• salon z aneksem kuchennym - przestronny, z dużymi oknami i wyjściem na balkon,
• dwa pokoje - wygodne, pełne naturalnego światła,
• łazienka - przestronna, wyposażona w wannę narożną,
• oddzielne WC - dodatkowa funkcjonalność,
• przedpokój - z pojemnymi szafkami na ubrania,
• balkon przeszklony - z pięknym widokiem na okolicę.

Mieszkanie jest dwustronne, co zapewnia doskonałe doświetlenie przez cały dzień.
Okna wychodzą na południe i północ, dzięki czemu w każdej porze dnia masz dostęp
do naturalnego światła.

Lokalizacja, która ułatwia życie:
• 5 minut spacerem do stacji Metro Wileńska,
• Bliskość przystanków tramwajowych i autobusowych - szybki dojazd do Centrum Warszawy,
• 5 minut do Warszawy Wileńskiej (kolej),
• Centrum Praskie Koneser - tylko 2 minuty pieszo,
• W sąsiedztwie Biedronka, Żabka, restauracje, puby, a także szkoły i przedszkola,
• Park Praski - idealne miejsce na spacery i wypoczynek na świeżym powietrzu.

Dodatkowe atuty:
• Niskie koszty utrzymania - czynsz miesięczny około 800 zł,
• Atrakcyjna cena, z możliwością negocjacji,
• Oferta skierowana do osób gotówkowych (nieuregulowane grunty).

Idealne mieszkanie dla Ciebie!

Zapraszam na prezentację

więcej

Informacje

Numer oferty34964496695 (MLS)
Typ transakcjiSprzedaż
Cena729 000 PLN
Powierzchnia61.1 m2
Cena za m211 931,26 PLN / m2
Liczba pokoi3
Piętro1/11
Typ budynkuBlok Mieszkalny
Liczba wind1
Liczba poziomów1
Dostępne od2025-02-10
Materiał budowlanywielka płyta
Rok budowy1981

Informacje dodatkowe

  • Na wyłączność
  • Domofon
  • Ogrzewanie
  • Gaz
  • Piwnica
  • Balkon
  • Winda

Lokalizacja

Wyślij zapytanie