Stary Mokotów kamienica z 1939r. 3 pokoje Sprzedaż

Warszawa, Mokotów, Aleja Niepodległości
1 300 000 PLN
19 679,08 PLN /m2
  • Cena 1 300 000 PLN
  • Powierzchnia 66,06 m2
  • Cena za m2 19 679,08 PLN
  • Liczba pokoi 3
  • Piętro 1/4
  • Rok budowy 1939

Opis oferty

Stary Mokotów - na sprzedaż mieszkanie, 3 pokoje, rozkładowe w kamienicy z 1939 roku.

Na sprzedaż przestronne, dwustronne mieszkanie w sercu Starego Mokotowa - przy ul. Niepodległości, w sąsiedztwie Skweru ks. Jana Twardowskiego, kina Iluzjon i Polskiej Wytwórni Papierów Wartościowych. Lokal mieści się na 1. piętrze kameralnej kamienicy z windą, gdzie na piętrze znajdują się jedynie dwa mieszkania.

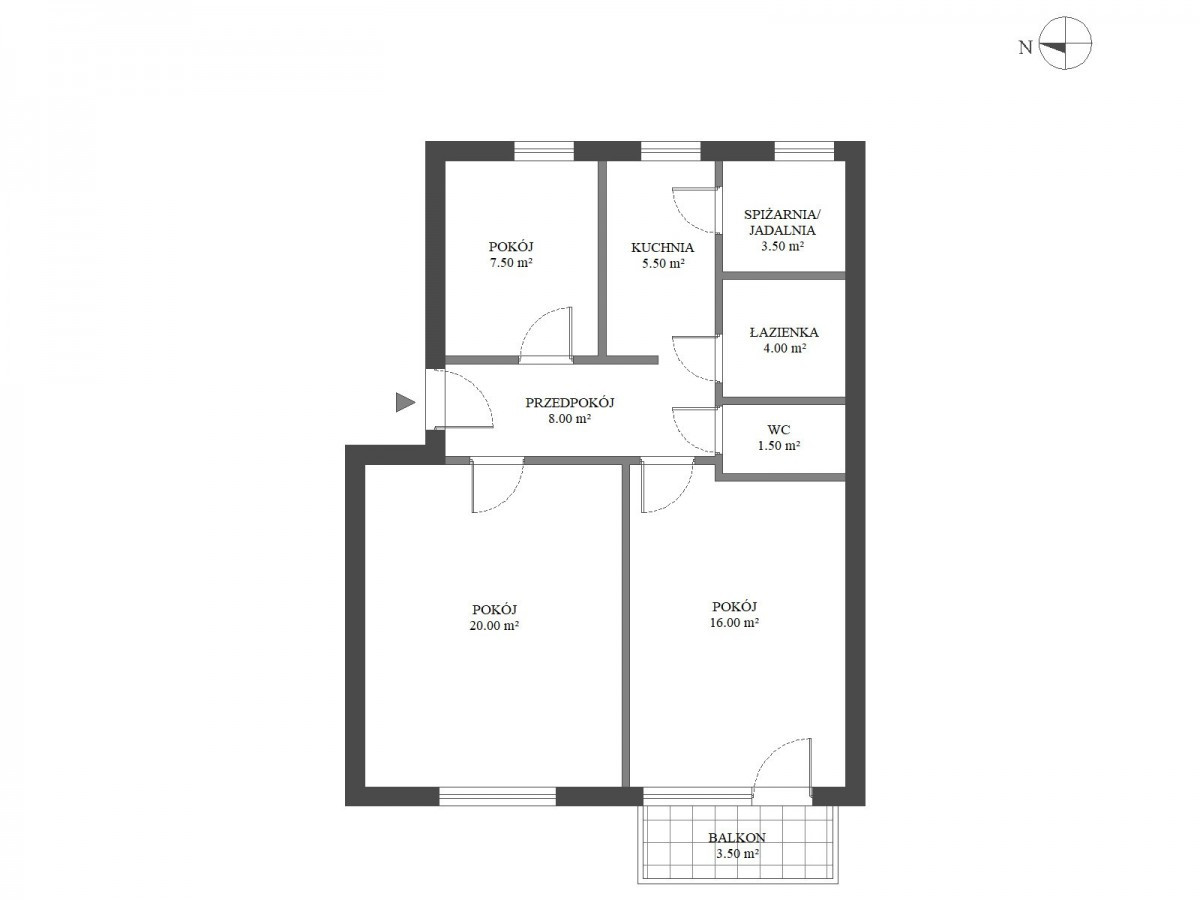
Układ pomieszczeń:

pokój ok. 20 m²,
pokój ok. 16 m² z wyjściem na balkon (ok. 3,5 m²),
pokój ok. 7,5 m² - idealny na gabinet lub pokój dziecka,
oddzielna kuchnia z przylegającą dawną służbówką - dziś spiżarnią lub jadalnią,
łazienka z kabiną prysznicową i WC,
dodatkowo osobne WC.
spory przedpokój z możliwością aranżacji pakownych szaf


Mieszkanie jest jasne i dobrze doświetlone dzięki dużym oknom. Wysokie - 3m. Dwustronne. Okna na Niepodległości i na patio. Na podłodze parkiet dębowy. Wymaga odświeżenia. Łatwo też będzie zaaranżować wnętrze według własnych potrzeb. Właściciel mieszkania korzysta z dwóch piwnic.

Atuty lokalizacji:

zaledwie kilka minut pieszo do stacji Metro Pole Mokotowskie,
zielona i prestiżowa część Mokotowa, pełna klimatycznych kamienic, parków i kawiarni,
doskonała komunikacja z centrum miasta oraz innymi dzielnicami - linia tramwajowa północ - południe oraz nowo budowana wschód zachód (tzw. tramwaj na Wilanów) w pobliżu także linie autobusowe
niedaleko uczelnia SGH, park Pole Mokotowskie


Najważniejsze cechy:


kamienica z historią - rok budowy 1939,
tylko 2 mieszkania na piętrze,
winda, balkon, piwnice,
funkcjonalny układ pomieszczeń,
wysokie - 3m, z dużymi oknami,
atrakcyjna lokalizacja - Stary Mokotów.

Mieszkanie nada się zarówno dla rodziny, osób pracujących w domu, studentów ale też pod biuro lub kancelarię.
Może być świetnym miejscem pracy dla księgowych, prawników, notariusza, architektów itp.

Parking wzdłuż Niepodległości objęty Strefą Płatnego Parkowania - możliwy abonament mieszkańca.

Opłaty administracyjne z zaliczkami na wodę i ogrzewanie na poziomie 1240 zł.

więcej

Informacje

Numer oferty34964531000 (MLS)
Typ transakcjiSprzedaż
Cena1 300 000 PLN
Powierzchnia66.06 m2
Cena za m219 679,08 PLN / m2
Liczba pokoi3
Piętro1/4
Typ budynkuKamienica
Liczba wind1
Dostępne od2025-09-27
Rok budowy1939
Liczba sypialni3

Informacje dodatkowe

  • Na wyłączność
  • Domofon
  • Piwnica
  • Balkon
  • Winda

Lokalizacja

Wyślij zapytanie