4 pokoje/2 x WC/balkon/Metro 80 m Sprzedaż

Warszawa, Praga-Północ Nowa Praga, Kowieńska
1 020 000 PLN
14 166,67 PLN /m2
  • Cena 1 020 000 PLN
  • Powierzchnia 72 m2
  • Cena za m2 14 166,67 PLN
  • Liczba pokoi 4
  • Piętro 1/5
  • Rok budowy 2008

Opis oferty

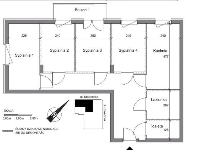
Na sprzedaż mieszkanie idealne pod inwestycje, zaaranżowane pod najem krótkoterminowy, podzielone na 4 pokoje/sypialnie.

Obecnie mieszkanie jest wynajmowane w formule wynajmu krótkoterminowego.

Wyróżnikiem oferty jest świetne lokalizacja mieszkania przy samym Metrze Szwedzka w rewitalizowanej części Nowej Pragi.

Łatwa możliwość przearanżowania mieszkania na 2 lub 3 pokoje z dużą oddzielną jasną kuchnię oraz przestronną łazienką (patrz rzut mieszkania).

ROZKŁAD POMIESZCZEŃ:
-4 oddzielne pokoje ok 10-8 mkw każdy (piąta sypialnia również z oknem powstała z podzielania kuchni)
-WC
-łazienka z WC
-kuchnia
-hol
-balkon

Do lokalu przynależy:
- miejsce parkingowe w garażu podziemnym - płatne dodatkowo 30.000 zł

Komunikacja:
- Metro Szwedzka (80 m)
- autobusy
- tramwaj (300 m)

Lokalizacja:
Okolice skrzyżowania ul. Szwedzkiej i ul. Kowieńskiej

Okolica/infrastruktura:
Jedna z najładniejszych okolic rewitalizowanej część Pragi Północ.
- Park Praski / ZOO (1,5 km)
- Park Skaryszewski (3 Km)
- liczne sklepy i punkty usługowe i gastronomiczne
- fantastyczna komunikacja

Stan prawny nieruchomości:
- pełna własność z księgą wieczystą

CZYNSZ ADMINISTRACYJNY:
- 650zł

więcej

Informacje

Numer oferty34964503011 (MLS)
Typ transakcjiSprzedaż
Cena1 020 000 PLN
Powierzchnia72 m2
Cena za m214 166,67 PLN / m2
Liczba pokoi4
Piętro1/5
Typ budynkuBlok Mieszkalny
Liczba wind1
Liczba poziomów1
Miejsca parkingoweMiejsca parkingowe podziemne
Materiał budowlanycegła
Rok budowy2008
Liczba sypialni4

Informacje dodatkowe

  • Na wyłączność
  • Ogrzewanie
  • Domofon
  • Balkon
  • Winda

Lokalizacja

Wyślij zapytanie