Metro | 3 pokoje | Staw | Cicho | Loggia Sprzedaż

Warszawa, Bielany, Lwa Tołstoja
710 000 PLN
742 000 PLN
  • Cena 710 000 PLN
  • Powierzchnia 55 m2
  • Cena za m2 12 909,09 PLN
  • Liczba pokoi 3
  • Piętro 10/10
  • Rok budowy 1979

Opis oferty

Mam przyjemność zaprezentować trzypokojowe mieszkanie, położone w zielonej części Bielan w bezpośrednim sąsiedztwie Stawu Brustmana.
Zaledwie 8 minut spacerem dzieli mieszkanie od stacji metra Wawrzyszew oraz Młociny - to doskonała lokalizacja zarówno do zamieszkania, jak i pod inwestycję.

ATUTY:
▪️Doskonała lokalizacja inwestycyjna - w pobliżu uczelnie, metro, Galeria Młociny oraz szybki dojazd do centrum Warszawy.
▪️Ciche, słoneczne i dwustronne mieszkanie z widokiem na zieleń.
▪️Nowo zamontowana winda (oddana do użytku w ubiegłym miesiącu).
▪️Duża ilość ścian działowych

LOKALIZACJA:
Nieruchomość położona jest w doskonałym punkcie komunikacyjnym - w zasięgu 8 minut spacerem znajduje się stacja metra Wawrzyszew, a metro Młociny oddalone jest o około 10 minut. W najbliższym sąsiedztwie dostępne są liczne linie autobusowe, co zapewnia wygodne połączenia z każdą częścią miasta.
W okolicy znajdują się Staw Brustmana i tereny spacerowe, a także Rezerwat Las Bielański, idealne miejsca na relaks i aktywny wypoczynek. Nieopodal mieści się również Targ Wolumen, liczne sklepy, kawiarnie, piekarnie oraz apteki. W pobliżu zlokalizowane są także uczelnie wyższe - AWF i UKSW.

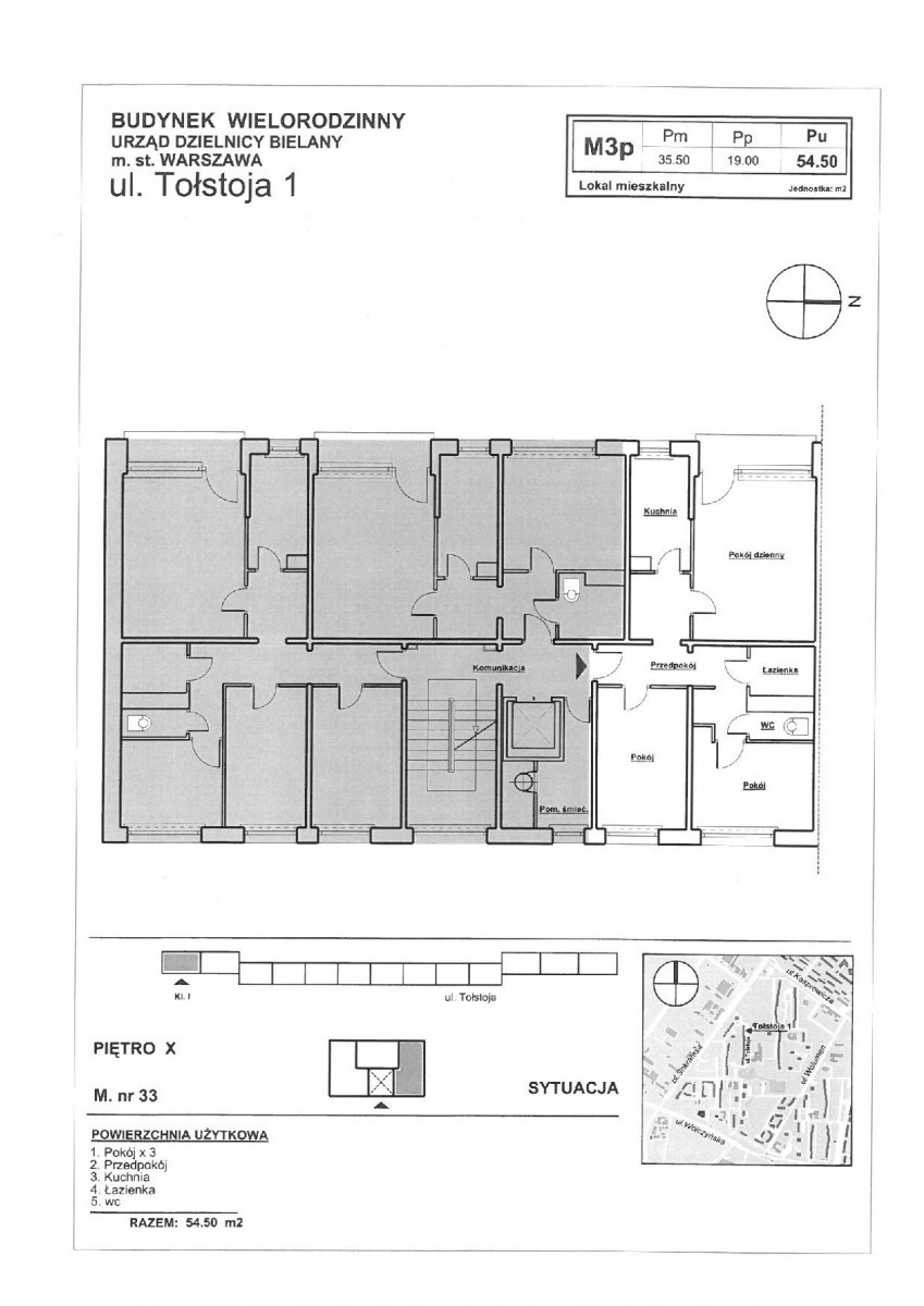
ROZKŁAD - 55m² + komórka lokatorska :
▪️Przestronny, słoneczny salon z loggią i wydzieloną kuchnią z oknem
▪️Dwie niezależne sypialnie
▪️Przedpokój z wnęką na dużą szafę
▪️Łazienka z prysznicem.
▪️oddzielna toaleta

Stan mieszkania: do odświeżenia lub własnej aranżacji.

Mieszkanie znajduje się na 10. piętrze w 10-piętrowym budynku z wielkiej płyty. Budynek był sukcesywnie modernizowany - wymieniono wszystkie piony wodne, kanalizacyjne i grzewcze. Klatka schodowa jest w dobrym stanie, a w ubiegłym miesiącu oddano do użytku nowąwindę.

Lokal jest w pełni rozkładowy i dwustronny, co zapewnia doskonałe doświetlenie o każdej porze dnia. Mieszkanie daje wiele możliwości aranżacyjnych dzięki dużej liczbie ścianek działowych, które można dowolnie modyfikować według własnych potrzeb.

To również znakomita propozycja inwestycyjna ze względu na bliskość licznych uczelni wyższych oraz bardzo dobrą komunikację z pozostałymi dzielnicami Warszawy.

OTOCZENIE:
To idealne miejsce dla osób ceniących spokój oraz bliskość terenów zielonych.
Nieruchomość położona jest przy cichej, zielonej ulicy, co zapewnia mieszkańcom komfort i prywatność.

Istnieje możliwość parkowania na ulicy lub wynajęcia miejsca postojowego w pobliżu - koszt wynajmu wynosi około 200 zł miesięcznie.

więcej

Informacje

Numer oferty34964533734 (MLS)
Typ transakcjiSprzedaż
Cena710 000 PLN
Powierzchnia55 m2
Cena za m212 909,09 PLN / m2
Liczba pokoi3
Piętro10/10
Typ budynkuBlok Mieszkalny
Liczba wind1
Dostępne od2025-12-01
Materiał budowlanywielka płyta
Rok budowy1979
Liczba sypialni2

Informacje dodatkowe

  • Na wyłączność
  • Ogrzewanie
  • Domofon
  • Winda

Lokalizacja

Wyślij zapytanie