43 mkw, 2 pokoje, balkon garaż /Zieleń i spokój Sprzedaż

powiat Warszawa, Warszawa, Posag 7 Panien
780 000 PLN
18 059,74 PLN /m2
  • Cena 780 000 PLN
  • Powierzchnia 43,19 m2
  • Cena za m2 18 059,74 PLN
  • Liczba pokoi 2
  • Piętro 7/7
  • Rok budowy 2017

Opis oferty

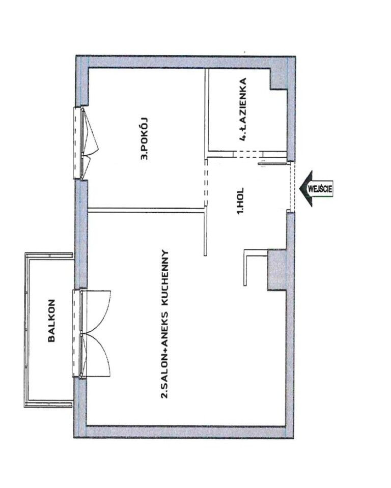
43 m kw, 2 pokoje, balkon garaż / URSUS Doskonała lokalizacja: ulica Posag 7 Panien w modnej części Ursusa. Mieszkanie znajduje się na 7 piętrze w nowoczesnym budynku, na zamkniętym terenie, z własnym placem zabaw i miejscami relaksu, okna wychodzą na spokojną część. Bardzo dobry standard wykończenia: mieszkanie jest wyposażone we wszystko czego trzeba, aby czuć się komfortowo. Dodatkowo jest klimatyzacja. Przestrzenna łazienka (3,5 mkw) z gustowną glazurą i pralką , 2 pokoje z metrażem 10 i 25 mkw oraz balkon ok. 4 mkw . W przedpokoju znajduje się zabudowana szafa. Mieszkanie może być również doskonałym rozwiązaniem inwestycyjnym pod najem (2 osobne pokoje). Ekspozycja: Południowy-wschód zapewnia dużo światła w mieszkaniu. Dodatkowe udogodnienia: Do mieszkania przynależy miejsce w garażu podziemnym, płatane dodatkowo 50 000 zł. Mieszkanie składa się z: - salon z aneksem kuchennym 25 mkw - pokój 10 mkw- łazienka 3,5 mkw - przedpokój 4 mkw - balkon 4 mkw Zapraszam do kontaktu, aby umówić się na wizytę w tej modnej, nowoczesnej lokalizacji w Warszawie.

więcej

Informacje

Numer oferty34964512318 (MLS)
Typ transakcjiSprzedaż
Cena780 000 PLN
Powierzchnia43.19 m2
Cena za m218 059,74 PLN / m2
Liczba pokoi2
Piętro7/7
Liczba wind1
Liczba poziomów0
Dostępne od2025-09-01
Materiał budowlanycegła
Rok budowy2017

Informacje dodatkowe

  • Na wyłączność
  • Domofon
  • Balkon
  • Winda

Lokalizacja

Wyślij zapytanie