Dom na skraju Lasu Kabackiego Sprzedaż

Warszawa, Ursynów Kabaty, Trakt Leśny
6 900 000 PLN
21 974,52 PLN /m2
  • Cena 6 900 000 PLN
  • Powierzchnia 314 m2
  • Cena za m2 21 974,52 PLN
  • Liczba pokoi 8
  • Rok budowy 2012

Opis oferty

DOM | BASEN | JACUZZI I SAUNA | 314 M2 | 8 POKOI | 3 ŁAZIENKI | DZIAŁKA 1040 M2 | LAS KABACKI


DLA KOGO:

Ten dom został zaprojektowany dla rodziny która ceni sobie luksus, spokój i bliskość natury. Położony w prestiżowej lokalizacji, tuż przy Lesie Kabackim, stanowi idealne miejsce dla tych, którzy szukają harmonii oraz przestrzeni do wypoczynku w bezpośrednim kontakcie z przyrodą. W pełni wyposażony w nowoczesne udogodnienia, takie jak basen, jacuzzi oraz sauna, oferuje komfort na najwyższym poziomie. Zadbany ogród otoczony zielenią tworzy atmosferę prywatności i relaksu. Jest to doskonała opcja dla miłośników zwierząt, zwłaszcza psów, dzięki bezpośredniemu dostępowi do malowniczych terenów spacerowych. Położenie w odległości zaledwie 20 minut jazdy od centrum Warszawy sprawia, że dom jest idealny dla osób, które pragną uciec od miejskiego zgiełku, nie rezygnując z szybkiego dostępu do wszystkich miejskich udogodnień.


DANE TECHNICZNE:

Wolnostojący dom z 2012 roku wykonany w technologii tradycyjnej murowanej o powierzchni użytkowej 314 m2, 1040 m2 powierzchni działki. Pojemny garaż dwustanowiskowy. Urokliwa zielona działka otoczona murowano-drewnianym ogrodzeniem.
Budynek wyposażony jest w instalacje:
*Elektryczną i teletechniczną
*Alarmową
*Wodnokanalizacyjną
*Gazowa - z sieci miejskiej
*Grzewcza c.o i c.w. z pieca gazowego
*Klimatyzację


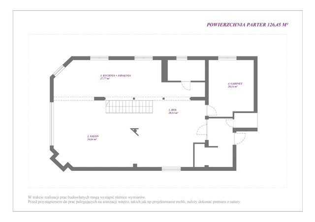
ROZKŁAD POMIESZCZEŃ:

PARTER:
-Sień i garderoba
-Holl
-Kuchnia i jadalnia
-Salon z kominkiem
-Łazienka
-Gabinet
-Pom. gospodarcze
-Garaż

+Taras z basenem i jacuzzi


PIĘTRO:
-Holl
-Pokój
-Pokój
-Łazienka z Sauną
-Pokój
-Pomieszczenie Techniczne
-Sypialnia Master z garderobą, łazienką i tarasem.


WYKOŃCZENIE I POMYSŁ:

Ten dom, położony tuż przy Lesie Kabackim, został zaprojektowany z myślą o harmonii, spokoju i bliskości natury. Wnętrza i elewacja nawiązują do nowoczesnej elegancji, z dużymi przeszkleniami wpuszczającymi naturalne światło oraz subtelnymi akcentami, które integrują dom z otaczającą przyrodą. Na posesji znajdują się luksusowe udogodnienia, takie jak basen, jacuzzi i sauna, które zapewniają relaks i odprężenie w intymnej, spokojnej atmosferze. Starannie utrzymany ogród pełen zieleni podkreśla harmonię z otoczeniem, a cisza i spokój panujące w tej okolicy tworzą idealne miejsce do wypoczynku. Każdy element został zaprojektowany tak, aby podkreślić bliskość natury oraz umożliwić wyciszenie i regenerację..


LOKALIZACJA:

Nieruchomość znajduje się w otulinie Lasu Kabackiego, niespełna 100 metrów od jego pięknych, zielonych terenów, co sprawia, że to miejsce idealne dla miłośników natury i aktywnego wypoczynku. Położenie na Kabatach to jedna z najbardziej prestiżowych lokalizacji w Warszawie, oferująca świetny dostęp do wszelkich udogodnień miejskich. Zaledwie 1,5 km dzieli dom od stacji metra Kabaty, co zapewnia szybkie i wygodne połączenie z centrum miasta. W pobliżu znajdują się liczne sklepy, w tym duży hipermarket, restauracje, kawiarnie oraz renomowane szkoły i przedszkola. Bliskość parku i Lasu Kabackiego czyni tę lokalizację doskonałą dla rodzin z dziećmi oraz osób aktywnie spędzających czas na świeżym powietrzu.

więcej

Informacje

Numer oferty34964495215 (MLS)
Typ transakcjiSprzedaż
Cena6 900 000 PLN
Powierzchnia314 m2
Cena za m221 974,52 PLN / m2
Liczba pokoi8
Liczba miejsc parkingowych3
Liczba łazienek3
Liczba sypialni4
Typ zabudowyWolnostojący
Dostępne od2024-11-18
Forma własnościWłasność
Miejsca parkingoweMiejsca parkingowe naziemne, Miejsca w garażu
Stan budynkuBardzo Dobry
Rok budowy2012
Powierzchnia działki1 040

Informacje dodatkowe

  • Gaz
  • Woda
  • Taras
  • Prad
  • Meble
  • Balkon
  • Na wyłączność

Lokalizacja

Film

Wyślij zapytanie