4 pokoje z ogródkiem 126 m2! Odbiór w lipcu Sprzedaż

Warszawa, Mokotów, Polska
1 560 000 PLN
17 723,24 PLN /m2
  • Cena 1 560 000 PLN
  • Powierzchnia 88,02 m2
  • Cena za m2 17 723,24 PLN
  • Liczba pokoi 4
  • Piętro parter/3
  • Rok budowy 2025

Opis oferty

gotowe mieszkanie w stanie deweloperskim

NAJWAŻNIEJSZE INFORMACJE:
- Mokotów, Siekierki, ul. Polska 10
- powierzchnia sprzedażowa lokalu: 88,02 m2
- powierzchnia ogródka: 126,23 m2
- komórka lokatorska: 6,07 m2
- gotowe mieszkanie
- jedno miejsce parkingowe

transakcja na rynku wtórnym - 2% PCC


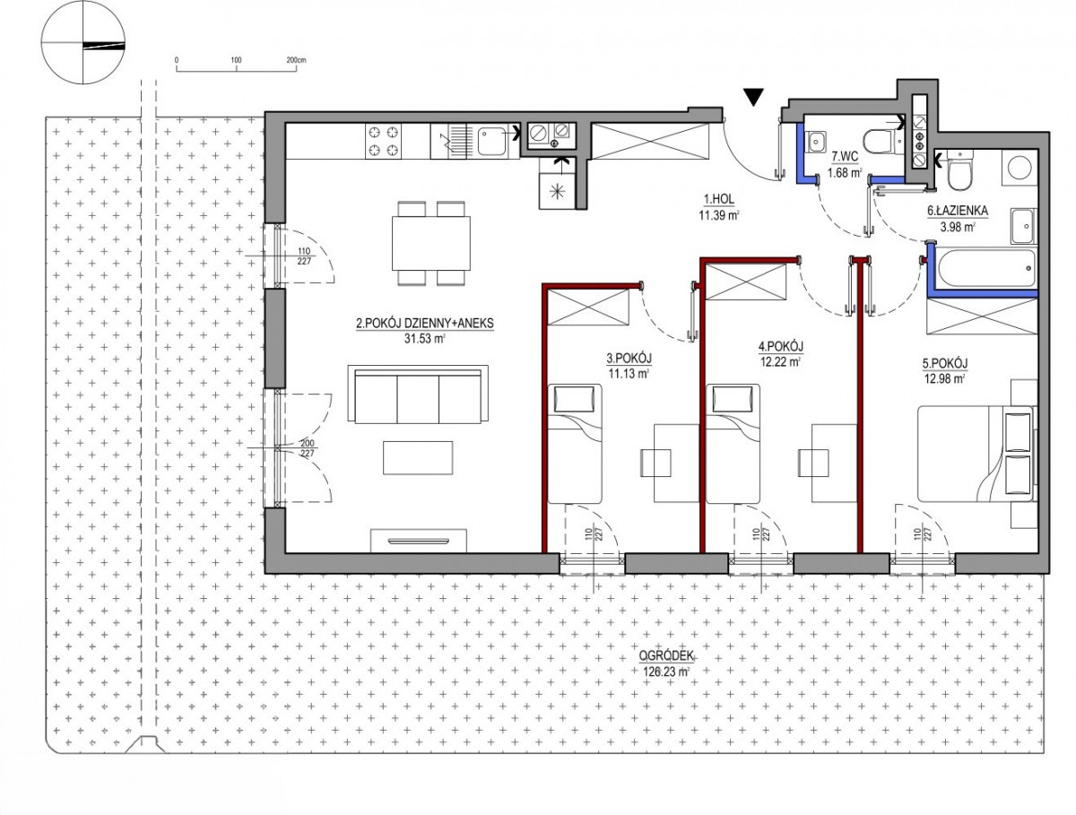
Lista pomieszczeń:


salon + aneks kuchenny - 31,53 m2
sypialnia - 11,13 m2
sypialnia - 12,22 m2
sypialnia - 12,98 m2
łazienka - 3,98 m2
WC - 1,68 m2


CENA: 1 560 000 - lokal + 90 000 miejsce parkingowe oraz komórka

ŁĄCZNA CENA: 1 650 000 zł

więcej

Informacje

Numer oferty34964504914 (MLS)
Typ transakcjiSprzedaż
Cena1 560 000 PLN
Powierzchnia88.02 m2
Cena za m217 723,24 PLN / m2
Liczba pokoi4
Piętroparter/3
Liczba wind1
Dostępne od2025-08-31
Miejsca parkingoweMiejsca parkingowe podziemne
Rok budowy2025
Liczba sypialni3

Informacje dodatkowe

  • Na wyłączność
  • Winda

Lokalizacja

Film

Wyślij zapytanie