Przedwojenna willa na Belwederskiej Sprzedaż

Warszawa, Mokotów, Belwederska
8 500 000 PLN
18 478,26 PLN /m2
  • Cena 8 500 000 PLN
  • Powierzchnia 460 m2
  • Cena za m2 18 478,26 PLN
  • Liczba pokoi 7
  • Rok budowy 1928

Opis oferty

Brief:
Warszawa | Trakt Królewski | Willa z lat 20. XX wieku autorstwa Marcina Weinfelda - projektanta słynnego przedwojennego Prudentiala.

460 m² powierzchni użytkowej, ogród 641 m², pełna infrastruktura gastronomiczna.
Willa po generalnym remoncie, z bogatą historią, idealna zarówno na cele reprezentacyjne, jak i inwestycyjne - restauracja, dom prywatny, butikowy hotel, instytucja kultury.
Cena: 8 500 000 zł + VAT.

Atuty:
* Wyjątkowa lokalizacja tuż przy Trakcie Królewskim, w sąsiedztwie Łazienek Królewskich
* Projekt autorstwa znanego architekta Marcina Weinfelda
* Budynek po generalnym remoncie - nowe instalacje, piony, stolarka, okna
* W cenie kompletne, w pełni wyposażone zaplecze gastronomiczne
* Wyjątkowy klimat - drewno, kamień, kryształowe żyrandole z Włoch i Francji
* Wszystkie pomieszczenia klimatyzowane

Wnętrze:
Parter:
- Weranda
- Sala kominkowa
- Salka restauracyjna
- Bar
- 2 pokoje szatniowe
- Toaleta

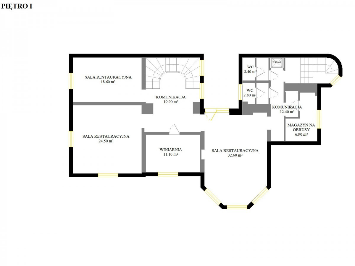
Piętro:
- 3 eleganckie sale ze stołami
- Pokój na wina (chłodzony, bez okien)
- 2 toalety

Poddasze:
- Sala VIP z piecem typu koza
- 2 szatnie z prysznicami
- Pomieszczenie biurowe

Piwnica:
- 6 w pełni wyposażonych pomieszczeń kuchennych (czysta i brudna kuchnia)
- Dwie chłodnie, kilkanaście palników, piece, grille, zmywarki, kompletny sprzęt kuchenny i zastawy

Na każdym poziomie znajdują się pomieszczenia gospodarcze oraz toalety. Wykończenie wnętrz z najwyższej klasy materiałów - naturalne drewno, kamień, elementy dekoracyjne sprowadzane z zagranicy.

Sąsiedztwo:
Unikalna, prestiżowa okolica - willowa zabudowa, ambasady, historyczne rezydencje.
Tuż obok Łazienki Królewskie, Trakt Królewski i liczne placówki kulturalne.
Idealna lokalizacja dla działalności wymagającej elegancji i prestiżu.

Daleko czy blisko?
Doskonała dostępność komunikacyjna:
- kilka minut od centrum Warszawy
- szybki dostęp do linii tramwajowych i autobusowych
- wygodne połączenie z lotniskiem Chopina

Musisz jeszcze wiedzieć:
- Powierzchnia domu: 460 m²
- Powierzchnia działki: 641 m²
- Media miejskie
- Cena: 8 500 000 zł + VAT
- Willa dostępna od zaraz

Moja opinia:
To jedna z najbardziej wyjątkowych i pełnych charakteru nieruchomości dostępnych dziś na warszawskim rynku. Historyczna willa z duszą, wykończona z pietyzmem i utrzymana w znakomitym stanie technicznym. Idealna propozycja dla inwestora z wizją - przestrzeń gotowa do działania, w miejscu z absolutnie wyjątkową energią i prestiżem.

więcej

Informacje

Numer oferty34964465690 (MLS)
Typ transakcjiSprzedaż
Cena8 500 000 PLN
Powierzchnia460 m2
Cena za m218 478,26 PLN / m2
Liczba pokoi7
Liczba miejsc parkingowych0
Liczba łazienek7
Dostępne od2024-02-05
Forma własnościWłasność
Stan budynkuBardzo Dobry
Rok budowy1928
Typ zabudowyWolnostojący
Powierzchnia działki641

Informacje dodatkowe

  • Na wyłączność
  • Woda
  • Gaz
  • Piwnica
  • Taras
  • Prad

Lokalizacja

Wyślij zapytanie