NOWA CENA - Apartament z ogródkiem, 189,20m2 Sprzedaż

Warszawa, Wilanów, Radosna
3 405 600 PLN
18 000 PLN /m2
  • Cena 3 405 600 PLN
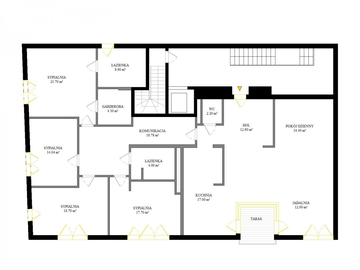
  • Powierzchnia 189,20 m2
  • Cena za m2 18 000 PLN
  • Liczba pokoi 7
  • Piętro parter/2
  • Rok budowy 2010

Opis oferty

Sadyba | ul. Radosna. Apartament z ogródkiem, obecnie przestrzeń studyjna o powierzchni 189,20m2. wykorzystywana jako studio, może zostać przekształcona w komfortowy apartament - idealny dla osób poszukujących elegancji, ciszy i funkcjonalności. Komórka lokatorska i dwa miejsca postojowem w garażu podziemnym, ogródek.


Wnętrze:
Przestrzeń studyjna znajduje się w zacisznej części Sadyby, przy ulicy Radosnej.

Całość jest klimatyzowana i wentylowana z centralnej jednostki zlokalizowanej na dachu, a system wyposażony jest w tłumiki akustyczne minimalizujące szum.

Budynek:
Budynek cechuje bardzo wysoki standard wykończenia. Obiekt jest monitorowany i zaopatrzony w media miejskie oraz pełną infrastrukturę teleinformatyczną. Wszystkie pomieszczenie są klimatyzowane. Istnieje możliwość zmiany aranżacji przestrzeni. Zarówno z przodu jak i z tyłu budynku znajduje się zadbany ogród. Budynek z szeroką bramą wjazdową.

Sąsiedztwo:
Nieruchomość znajduje się w bardzo cichej okolicy, sąsiadując z firmami, ambasadami i rezydencjami. W okolicy sklepy, szkoły. Bardzo dobra komunikacja z Centrum Warszawy, 15 min do lotniska Chopina.


Powyższa oferta ma charakter informacyjny i nie stanowi oferty handlowej w rozumieniu art. 66 §1 Kodeksu Cywilnego.

więcej

Informacje

Numer oferty34964506352 (MLS)
Typ transakcjiSprzedaż
Cena3 405 600 PLN
Powierzchnia189.2 m2
Cena za m218 000 PLN / m2
Liczba pokoi7
Piętroparter/2
Typ budynkuApartamentowiec
Dostępne od2025-05-19
Rok budowy2010

Informacje dodatkowe

  • Na wyłączność
  • Ogrzewanie

Lokalizacja

Wyślij zapytanie