3-pokojowe mieszkanie przy ul. Przejezdnej Sprzedaż

Warszawa, Białołęka, Przejezdna
710 000 PLN
13 391,17 PLN /m2
  • Cena 710 000 PLN
  • Powierzchnia 53,02 m2
  • Cena za m2 13 391,17 PLN
  • Liczba pokoi 3
  • Piętro 2/3
  • Rok budowy 2020

Opis oferty

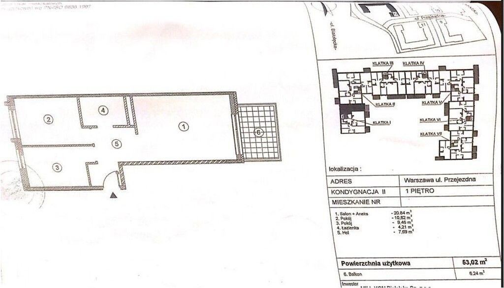
Mieszkanie przy ulicy Przejezdnej 12 na warszawskiej Białołęce – gotowe do wprowadzenia, dostępne od zarazInwestycja Aura Garden została zrealizowana przez renomowanego dewelopera Mill-Yon, znanego z dbałości o wysoką jakość wykończenia. Osiedle wyróżnia się starannie zaprojektowanymi częściami wspólnymi, bogatymi w zróżnicowaną roślinność, które nadają mu przyjazny i zielony charakter. Dodatkowym atutem jest spokojna i cicha okolica, gwarantująca komfort codziennego życia.Forma własności: pełna własność z księgą wieczystą – możliwy zakup na kredyt hipoteczny. Na mieszkanie o powierzchni 53,02 m² na 1 piętrze, w budynku z windą, składają się: Salon z aneksem kuchennym (20,84 m²) z wyjściem na balkon (6,24 m²), ekspozycja wschodnia Sypialnia (10,82 m²) z ekspozycją zachodnią Pokój (9,46 m²) z ekspozycją zachodnią Łazienka z wanną (4,21 m²) Hol (7,69 m²)Lokalizacja – Białołęka, ul. Przejezdna Spokojna, zielona okolica z pełną infrastrukturą Szybki dojazd do Trasy Toruńskiej Komunikacja miejska: przystanki autobusowe (120, 134) W pobliżu liczne sklepy (Carrefour, Lidl, Biedronka, Netto), a także centra handlowe: Factory Annopol, M1, Galeria Północna i CH Marywilska Ścieżki spacerowe i tereny rekreacyjne wzdłuż Kanału ŻerańskiegoParking Do mieszkania przynależy miejsce postojowe w garażu podziemnym na poziomie -1 dodatkowo płatne 40 000 złOpłaty Czynsz administracyjny: 850 zł – zawiera m.in. opłaty za fundusz remontowy, zaliczki na wodę, wywóz śmieci, centralne ogrzewanie, koszty eksploatacyjne oraz garażMieszkanie jest gotowe do wprowadzenia – idealne zarówno dla rodziny, pary, jak i jako inwestycja pod wynajem. Zapraszam do kontaktu w celu uzyskania dodatkowych informacji i umówienia prezentacji

więcej

Informacje

Numer oferty34964524878 (MLS)
Typ transakcjiSprzedaż
Cena710 000 PLN
Powierzchnia53.02 m2
Cena za m213 391,17 PLN / m2
Liczba pokoi3
Piętro2/3
Liczba poziomów0
Liczba wind1
Dostępne od2025-09-22
Rok budowy2020

Informacje dodatkowe

  • Na wyłączność
  • Balkon
  • Winda

Lokalizacja

Wyślij zapytanie